





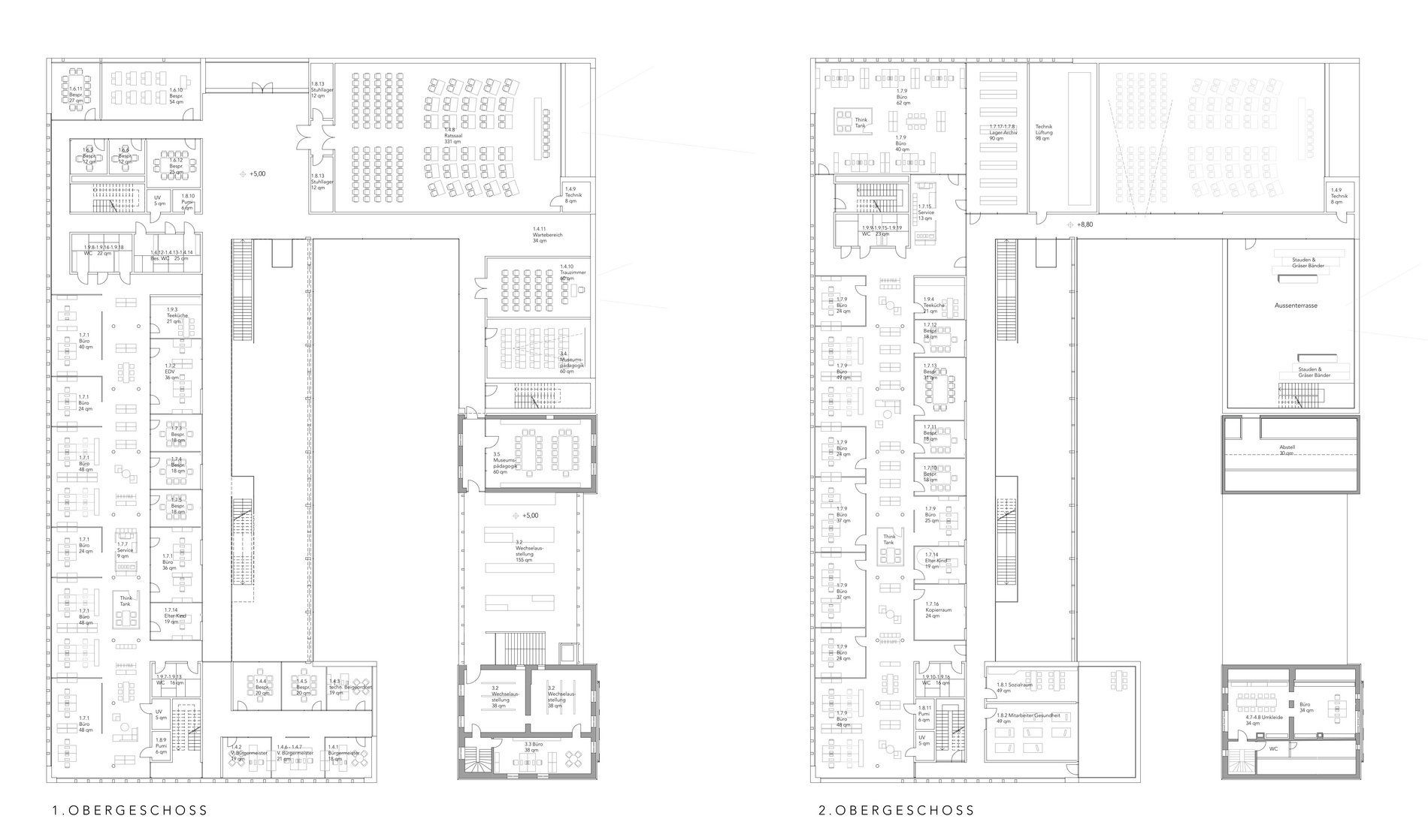
Das Bahnhofsgebäude, als Symbol für ein Stück Stadtgeschichte, wird als Museumsfläche und Café in das Bebauungskonzept integriert. Eine Erweiterung im 1. OG mit einer Vorhangfassade aus bedruckten Gläsern bildet als zeitgemäße flexibel nutzbare Ausstellungsfläche das Kernstück des Museums, und verdeutlicht mit seiner unkonventionellen Anmutung die museale Funktion nach Außen.
Blickbezüge zur Stadt werden in dem homogen geschlossenen Riegel von spannend organisierten transparenten Feldern in der Fassade hergestellt. Eine von Innen heraus wirkende, dezente Illumination läßt den Riegel als markantes Merkzeichen abends weithin sichtbar werden.
Der Neubau schließt sich unmittelbar an das Bahnhofsgebäude an, übernimmt dessen Höhenbezugslinien und entwickelt seine Dreigeschossigkeit in maß-vollem Abstand. Wie Spiegelbilder, umrahmen die erhöhten Gebäudeteile von Bahnhof und Neubau den Haupteingangsbereich. Die gleichgewichteten Anteile von Bestand und Neubau in dieser Ansicht stehen stellvertretend für einen gegenseitigen respektvollen Umgang miteinander.
Der Ratssaal sowie das Trauzimmer im 1. OG setzen sich mit ihren Panoramafenstern deutlich von der Fassade ab, unterstreichen damit ihre besonderen Funktionen und öffnen den Blick auf die Stadt. Ratssaal und das dazugehörige Foyer verfügen über einen „Stadtbalkon“. Diese bieten interessante Ein- und Ausblicke und gliedern das große Volumina in maßstäbliche und ortsverträgliche Proportionen.