







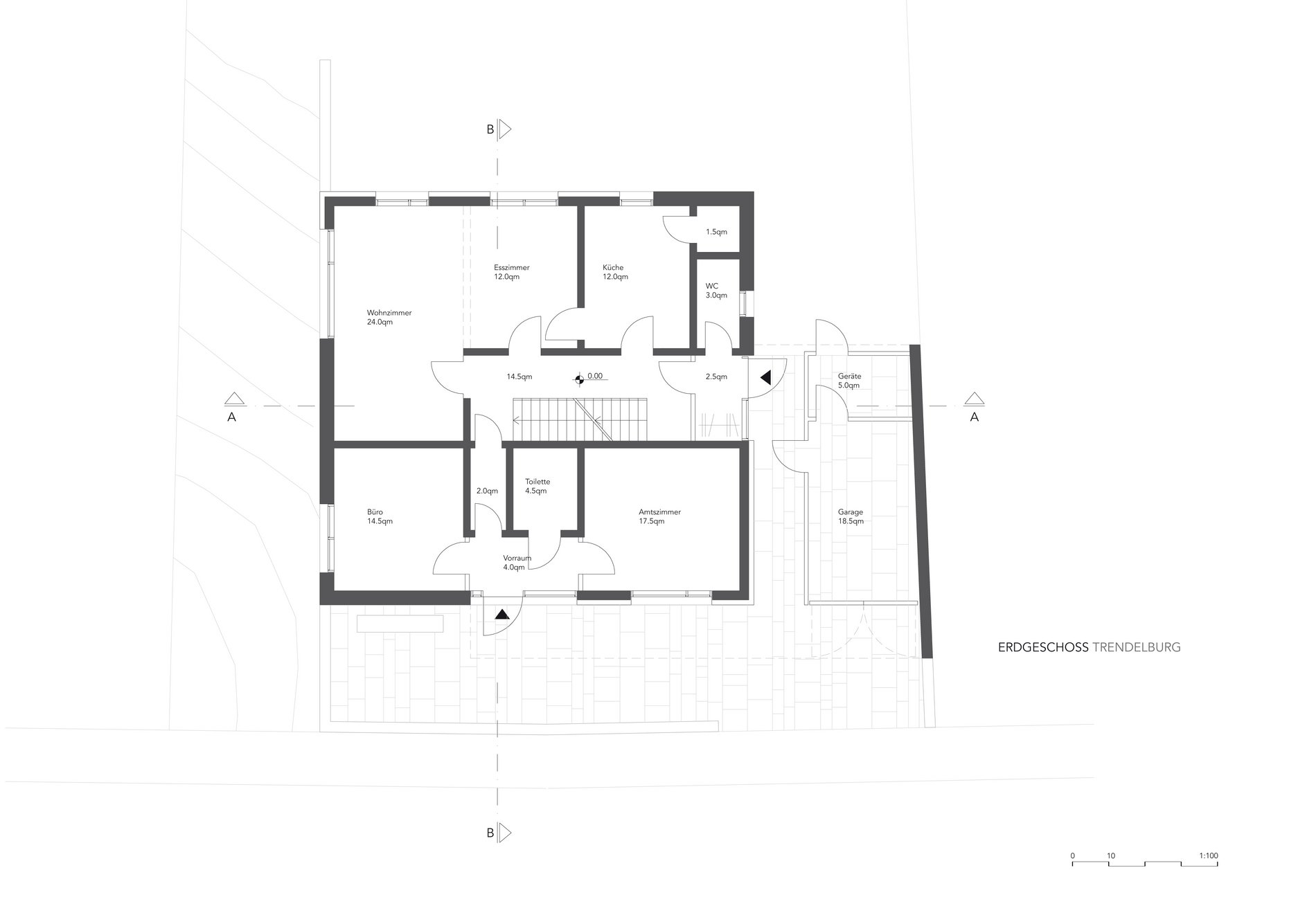
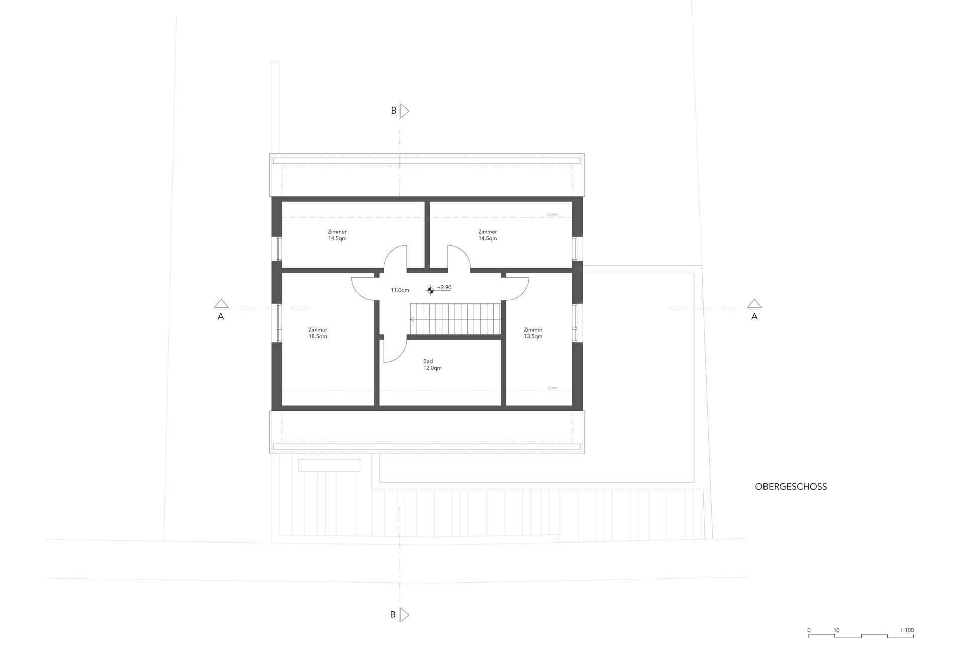
Die Grundriss -Typologie wurde auf beide Standorte angewendet. Unterschiede ergeben sich aufgrund der Geländetopografie nur im Untergeschoss.
Trotz dieses Unterschieds wurde großer Wert darauf gelegt, die technisch erforderlichen Räume in beiden Häusertypen an derselben Stelle zu belassen. Dadurch können die haustechnischen Installationen nach demselben Verlegeplan erfolgen.
Die klare und auf das wesentliche reduzierte Formensprache wird mit dem Materialkonzept weitergeführt, dass die in der Umgebung typischerweise und historisch vorkommenden Werkstoffe aufgreift und in moderner Abwandlung verwendet.
Ein Ziegelmauerwerk mit Putzfassade, in schwach bis mittel getönter Farbgebung und sanfter Putzlinien-Struktur, eine Dachziegeleindeckung in glatter Ausführung, sowie akzentuierende Schiebeläden und Fassadenverkleidungen aus Holzlamellen, sind die bestimmenden Materialien.
Die Gebäude fügen sich behutsam, aber durchaus prägnant und elegant in die gewachsene Umgebung ein.